Shinwoo

SHINWOO
AIR CONDITIONING CO., LTD.
KR admin
  • Product Info
  • Ventilation Unit
  • Ventilation Unit | Standard
  • Product Info

    홈페이지를 방문해주셔서 감사합니다.

    Ventilation Unit
    Ventilation Unit | Standard

    We aim to promote Korea's air conditioning technology worldwide
    and grow into a globally competitive company through sustainable innovation.

    • Ventilation Unit | Standard

      Representative Standard Model of the Ventilation Unit

    Ventilation Unit | Standard

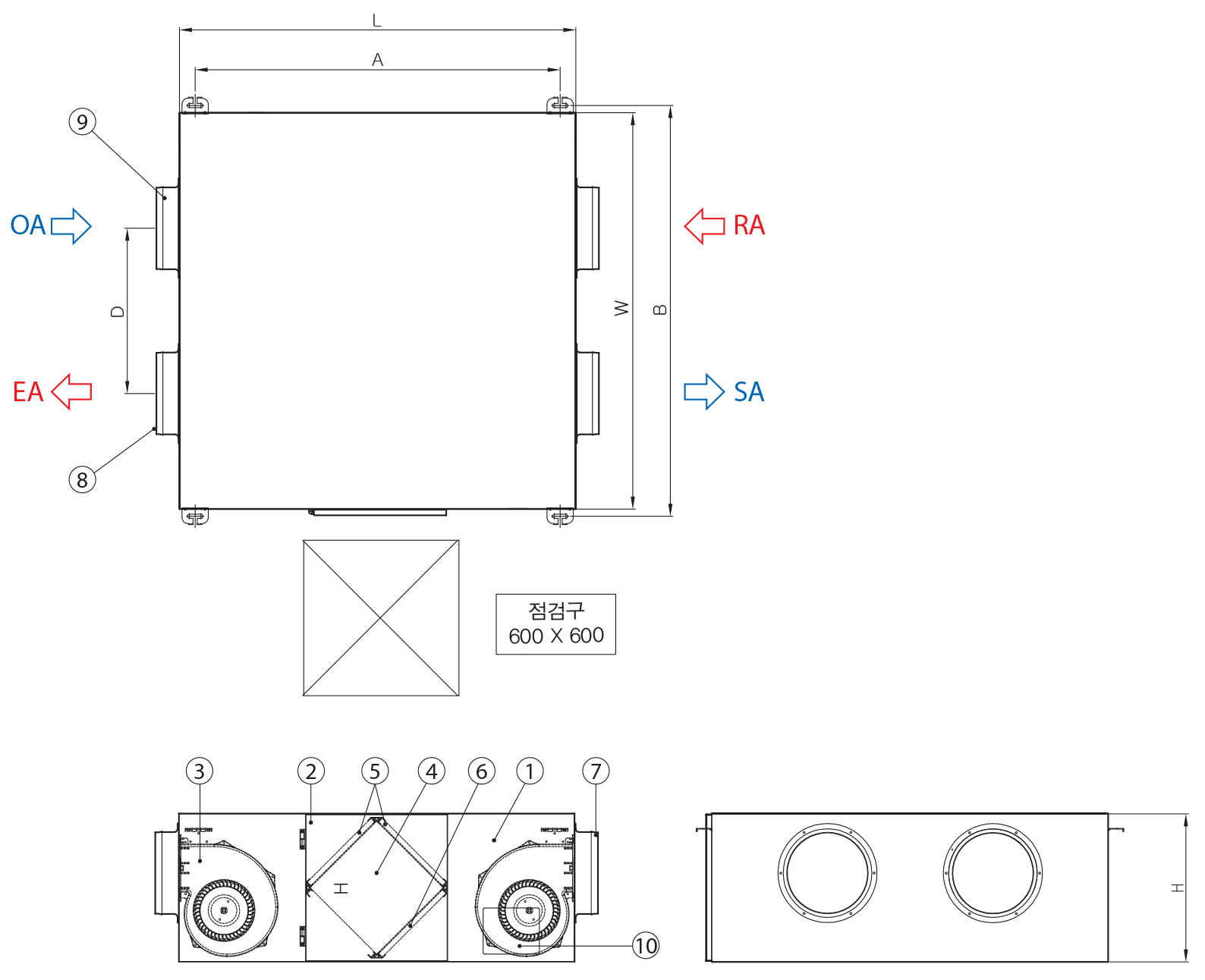
    • PART

      No. DESCRIPTION MAT'L Q'TY REMARK
      1 CASING SGCC 1 -
      2 ACCESS DOOR SGCC 1 -
      3 FAN & MOTOR - 2 BLDC MOTOR
      4 HEAT EXCHANGER PULP 1SET Special Processed Pulp for Heat Exchange
      5 PRE-FILTER - 2SET Nonwoven Fabric
      6 MEDIUM FILTER - 1SET Synthetic Fiber
      7 DUCT FLANGE ABS 2 F (SA, RA)
      8 MD ABS 1 F (EA)
      9 BDD ABS 1 F (OA)
      10 CONTROL BOX SGCC 1 PCB Included

      DIMENSION

      MODEL W L H A B D F
      SW-500SHJ 745 900 430 758 787 387 Ø200
      SW-800SHJ 1,200 1,200 450 1,078 1,242 500 Ø250
      SW-1000SHJ 1,200 1,200 450 1,078 1,242 500 Ø250

    Standard Specifications

    Horizontal Scroll
    Category Unit SW-500SHJ SW-800SHJ SW-1000SHJ
    Airflow Volume CMH Strong Medium Weak Strong Medium Weak Strong Medium Weak
    500 500 400 800 800 700 1,000 1,000 800
    Power Consumption W 240 191 180 420 248 214 500 413 375
    Static Pressure mmAq 12 10 12 10 12 10
    Product Size(W×L×H) mm 745×900×430 1,200×1,200×450 1,200×1,200×450
    Duct Diameter mm(Ø) 200 250 250
    Noise* dB 45dB(A) or less 50dB(A) or less 50dB(A) or less
    Power Supply - Ø1 / 220V / 60Hz
    Heat Recovery Rate % Heating : 78 / Cooling : 69 Heating : 75 / Cooling : 65 Heating : 75 / Cooling : 62
    Heat Exchanger - Square Plate Heat Exchanger
    Air Volume Control Method - ON/OFF, 3-Stage Control
    Filter - PRE FILTER, MEDIUM FILTER
    Casing - Galvanized Steel Sheet, Color Steel Sheet (Optional)
    Optional Specification - Antibacterial, Deodorization, Wired Remote Control, etc.
    * The noise level indication is based on the installation and completion of finishing work on-site.