팬코일유니트
상치형
대한민국 공조 기술을 세계에 알리고, 지속 가능한 혁신으로 글로벌 경쟁력을 갖춘 기업으로 성장하겠습니다.
상치(노출/매입) 상부토출형
상치(노출/매입) 전면토출형
상치노출 경사토출형(라운드형)
상치노출 경사토출형(경사형)
상치매입 전면흡입형
제품특징
저진동, 저소음,긴수명의 다이캐스팅 하우징의 전동기를 적용하였습니다.
-
-
실내 공기를 고르게 분포시킬 수 있도록 90°씩 풍향 조절이 가능한 토출 그릴을 사용합니다. (노출형)
일반 마이콤 스위치와 무선 리모컨용 스위치를 부착할 수 있습니다.Option
2코일(4PIPE) 적용이 가능 합니다.Option
BLDC 모터를 적용하여 저전력 고효율이 가능하며 AC 모터 대비 소비 전력을 30%이상 절감할 수 있습니다.Option
에너지 절감을 위하여 제품별 On/Off 밸브 설치를 권장 합니다.Option
제품 동작과 연동하여 유량을 제어하여 냉방 시 결로문제 예방 및 순환펌프의 불필요한 동작 횟수를 줄여줍니다.
중앙제어와 그룹제어가 가능합니다.Option
전력선 통신과 RS-485 통신을 이용하여 중앙에서 제어할 수 있습니다.
유선리모컨을 이용하여 16대까지 그룹제어를 할 수 있습니다.
UV램프를 사용하여 살균, 항균, 악취제거, 새집증후군을 해결하는데 탁월한 효과를 보입니다.Option
-
-
| MODEL |
A |
B (토출구) |
C (그릴) |
D (모터) |
E (팬) |
| SFC-20T |
940 |
p120 x 4 = 480 |
4 |
1 |
1 |
| SFC-30T |
1060 |
p120 x 5 = 600 |
5 |
1 |
1 |
| SFC-40T |
1180 |
p120 x 6 = 720 |
6 |
1 |
2 |
| SFC-60T |
1420 |
p120 x 8 = 960 |
8 |
1 |
2 |
| SFC-80T |
1660 |
p120 x 10 = 1200 |
10 |
2 |
3 |
| SFC-120T |
1900 |
p120 x 12 = 1440 |
12 |
2 |
4 |
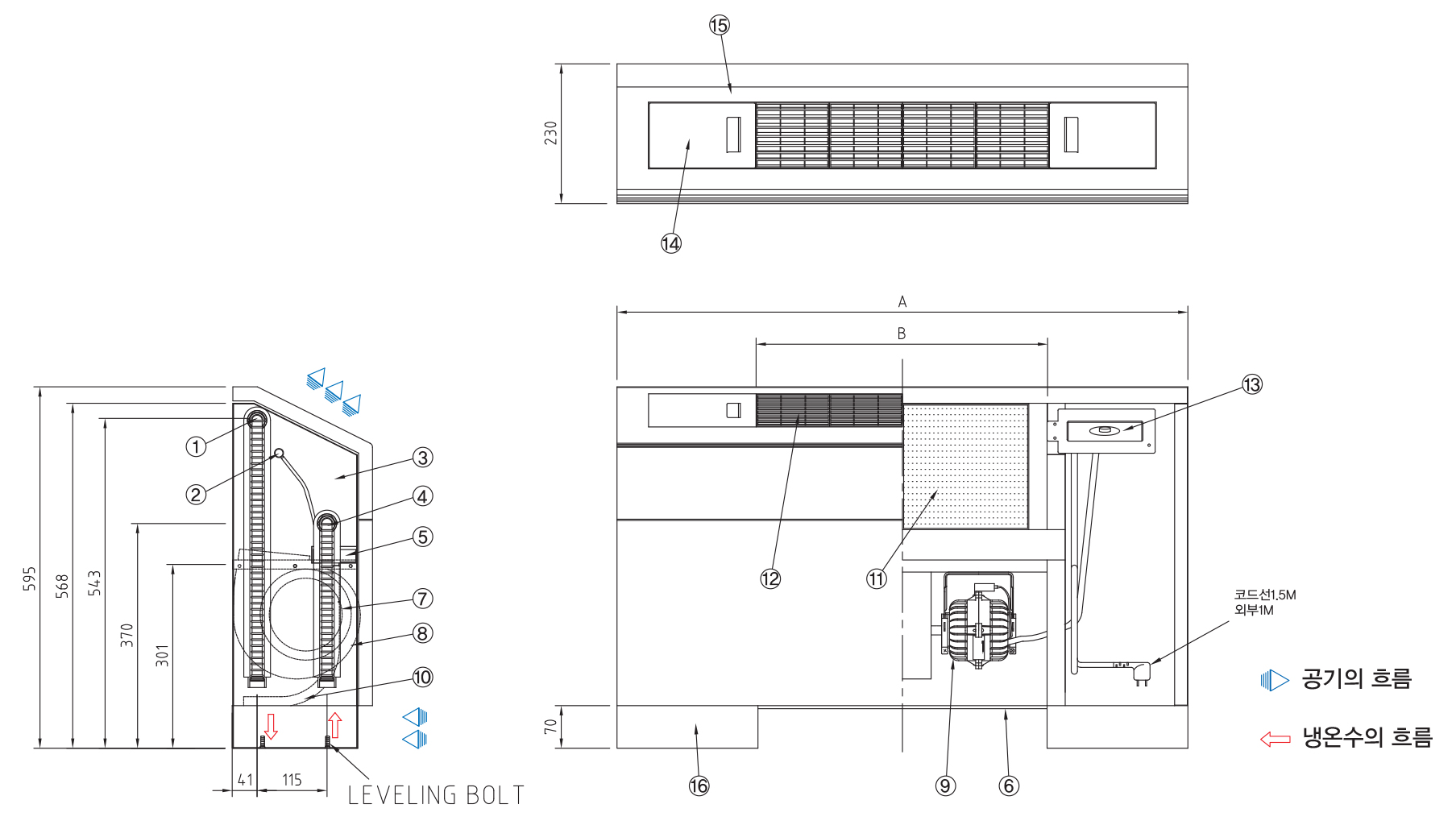
| No. |
DESCRIPTION |
MAT'L |
Q'TY |
REMARK |
| 1 |
INNER SIDE CASE |
ABS |
2 |
- |
| 2 |
WATER OUTLET |
BS |
1 |
PF 3/4"(20A) |
| 3 |
AIR VENT |
BS |
1 |
PT 1/8"(수동) |
| 4 |
WATER INLET |
BS |
1 |
PF 3/4"(20A) |
| 5 |
DRAIN PAN |
내열ABS |
1 |
플라스틱 |
| 6 |
FAN IMPLLER |
ABS |
E |
SIROCCO FAN |
| 7 |
FAN HOSING |
ABS |
E |
- |
| 8 |
DRAIN HOSE |
연질비닐 |
1 |
내경 Ø14 외경 Ø18 |
| 9 |
MOTOR |
ASS'Y |
D |
1Ø 220V 60Hz |
| 10 |
AIR FILTER |
염화비닐 |
1 |
수세식 |
| 11 |
HEAT & COOLING COIL |
CU-AL |
1 |
SLIT FIN |
| 12 |
CONTROL SWITCH |
- |
1 |
로타리식(강, 중, 약 3단) |
| 13 |
GRILLE |
내열ABS |
C |
120*120 |
| 14 |
ACCESS DOOR |
ABS |
2 |
120*200 |
| 15 |
외부 PANEL |
CR |
1 |
분체소부도장 |
| 16 |
BASE |
복합PP |
2 |
T/K 30% |
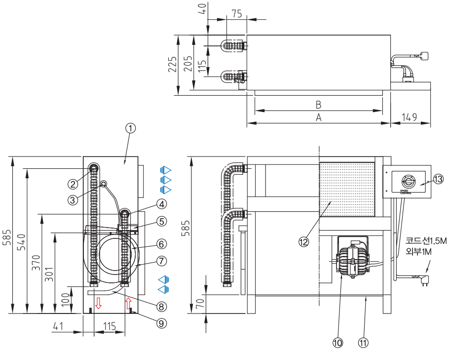
-
-
| MODEL |
A |
B (토출구) |
C (모터) |
D (팬) |
| SFC-20TM |
540 |
480 |
1 |
1 |
| SFC-30TM |
660 |
600 |
1 |
1 |
| SFC-40TM |
780 |
720 |
1 |
2 |
| SFC-60TM |
1020 |
960 |
1 |
2 |
| SFC-80TM |
1260 |
1200 |
2 |
3 |
| SFC-120TM |
1500 |
1440 |
2 |
4 |
| No. |
DESCRIPTION |
MAT'L |
Q'TY |
REMARK |
| 1 |
INNER SIDE CASE |
ABS |
2 |
- |
| 2 |
WATER OUTLET |
BS |
1 |
PF 3/4"(20A) |
| 3 |
AIR VENT |
BS |
1 |
PT 1/8"(수동) |
| 4 |
WATER INLET |
BS |
1 |
PF 3/4"(20A) |
| 5 |
DRAIN PAN |
내열ABS |
1 |
플라스틱 |
| 6 |
FAN IMPLLER |
ABS |
D |
SIROCCO FAN |
| 7 |
FAN HOSING |
ABS |
D |
- |
| 8 |
DRAIN HOSE |
연질비닐 |
1 |
내경Ø14 외경Ø18 |
| 9 |
LEVELING BOLT |
- |
4 |
6*35mm |
| 10 |
MOTOR |
ASS'Y |
C |
1Ø 220V 60Hz |
| 11 |
AIR FILTER |
염화비닐 |
1 |
수세식 |
| 12 |
HEAT & COOLING COIL |
CU-AL |
1 |
SLIT FIN |
| 13 |
CONTROL SWITCH |
- |
1 |
로타리식(강, 중, 약 3단) |
좌우 스크롤
제품특징
저진동, 저소음,긴수명의 다이캐스팅 하우징의 전동기를 적용하였습니다.
-
-
실내 공기를 고르게 분포시킬 수 있도록 90°씩 풍향 조절이 가능한 토출 그릴을 사용합니다. (노출형)
일반 마이콤 스위치와 무선 리모컨용 스위치를 부착할 수 있습니다.Option
2코일(4PIPE) 적용이 가능 합니다.Option
BLDC 모터를 적용하여 저전력 고효율이 가능하며 AC 모터 대비 소비 전력을 30%이상 절감할 수 있습니다.Option
에너지 절감을 위하여 제품별 On/Off 밸브 설치를 권장 합니다.Option
제품 동작과 연동하여 유량을 제어하여 냉방 시 결로문제 예방 및 순환펌프의 불필요한 동작 횟수를 줄여줍니다.
중앙제어와 그룹제어가 가능합니다.Option
전력선 통신과 RS-485 통신을 이용하여 중앙에서 제어할 수 있습니다.
유선리모컨을 이용하여 16대까지 그룹제어를 할 수 있습니다.
UV램프를 사용하여 살균, 항균, 악취제거, 새집증후군을 해결하는데 탁월한 효과를 보입니다.Option
-
-
| MODEL |
A |
B (토출구) |
C (그릴) |
D (모터) |
E (팬) |
| SFC-20F |
940 |
p120 x 4 = 480 |
4 |
1 |
1 |
| SFC-30F |
1060 |
p120 x 5 = 600 |
5 |
1 |
1 |
| SFC-40F |
1180 |
p120 x 6 = 720 |
6 |
1 |
2 |
| SFC-60F |
1420 |
p120 x 8 = 960 |
8 |
1 |
2 |
| SFC-80F |
1660 |
p120 x 10 = 1200 |
10 |
2 |
3 |
| SFC-120F |
1900 |
p120 x 12 = 1440 |
12 |
2 |
4 |
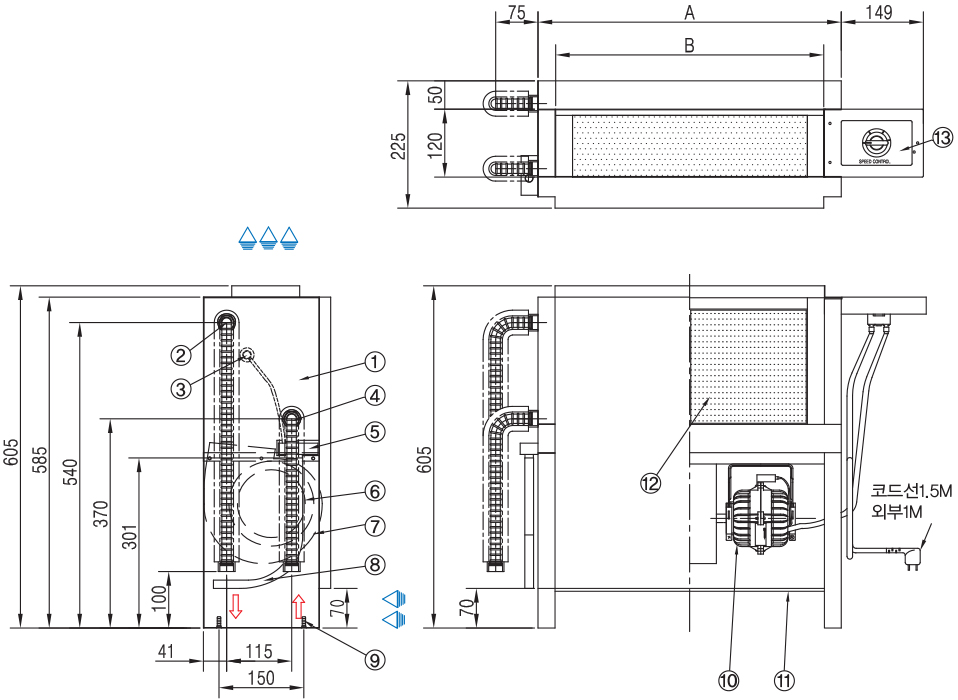
| No. |
DESCRIPTION |
MAT'L |
Q'TY |
REMARK |
| 1 |
INNER SIDE CASE |
ABS |
2 |
- |
| 2 |
WATER OUTLET |
BS |
1 |
PF 3/4"(20A) |
| 3 |
AIR VENT |
BS |
1 |
PT 1/8"(수동) |
| 4 |
WATER INLET |
BS |
1 |
PF 3/4"(20A) |
| 5 |
DRAIN PAN |
내열ABS |
1 |
플라스틱 |
| 6 |
FAN IMPLLER |
ABS |
E |
SIROCCO FAN |
| 7 |
FAN HOSING |
ABS |
E |
- |
| 8 |
DRAIN HOSE |
연질비닐 |
E |
내경 Ø14 외경 Ø18 |
| 9 |
MOTOR |
ASS'Y |
D |
1Ø 220V 60Hz |
| 10 |
AIR FILTER |
염화비닐 |
1 |
수세식 |
| 11 |
HEAT & COOLING COIL |
CU-AL |
1 |
SLIT FIN |
| 12 |
CONTROL SWITCH |
- |
1 |
로타리식(강, 중, 약 3단) |
| 13 |
GRILLE |
내열ABS |
C |
120*120 |
| 14 |
ACCESS DOOR |
ABS |
2 |
120*200 |
| 15 |
외부 PANEL |
CR |
1 |
분체소부도장 |
| 16 |
BASE |
복합PP |
2 |
T/K 30% |
-
-
| MODEL |
A |
B (토출구) |
C (그릴) |
D (모터) |
| SFC-20FM |
540 |
480 |
1 |
1 |
| SFC-30FM |
660 |
600 |
1 |
1 |
| SFC-40FM |
780 |
720 |
1 |
2 |
| SFC-60FM |
1020 |
960 |
1 |
2 |
| SFC-80FM |
1260 |
1200 |
2 |
3 |
| SFC-120FM |
1500 |
1440 |
2 |
4 |
| No. |
DESCRIPTION |
MAT'L |
Q'TY |
REMARK |
| 1 |
INNER SIDE CASE |
ABS |
2 |
- |
| 2 |
WATER OUTLET |
BS |
1 |
PF 3/4"(20A) |
| 3 |
AIR VENT |
BS |
1 |
PT 1/8"(수동) |
| 4 |
WATER INLET |
BS |
1 |
PF 3/4"(20A) |
| 5 |
DRAIN PAN |
내열ABS |
1 |
플라스틱 |
| 6 |
FAN IMPLLER |
ABS |
D |
SIROCCO FAN |
| 7 |
FAN HOSING |
ABS |
D |
- |
| 8 |
DRAIN HOSE |
연질비닐 |
1 |
내경Ø14 외경Ø18 |
| 9 |
LEVELING BOLT |
- |
4 |
6*35mm |
| 10 |
MOTOR |
ASS'Y |
C |
1Ø 220V 60Hz |
| 11 |
AIR FILTER |
염화비닐 |
1 |
수세식 |
| 12 |
HEAT & COOLING COIL |
CU-AL |
1 |
SLIT FIN |
| 13 |
CONTROL SWITCH |
- |
1 |
로타리식(강, 중, 약 3단) |
좌우 스크롤
제품특징
실내 공기를 고르게 분포시킬 수 있도록 90'씩 풍향 조절이 가능한 토출그릴을 사용합니다.
-
저 소음, 긴 수명의 단상 컨덴서 유도 전동기를 적용하였습니다.
곡선형의 미려한 디자인으로 실내 공간에 잘 어울립니다.
일반 마이콤 스위치와 무선 리모컨용 스위치를 부착할 수 있습니다.Option
BLDC 모터를 적용하여 저전력 고효율이 가능하며 AC 모터 대비 소비 전력을 30%이상 절감할 수 있습니다.Option
-
에너지 절감을 위하여 제품별 On/Off 밸브 설치를 권장 합니다.Option
제품 동작과 연동하여 유량을 제어하여 냉방 시 결로문제 예방 및 순환펌프의 불필요한 동작 횟수를 줄여줍니다.
중앙제어와 그룹제어가 가능합니다.Option
전력선 통신과 RS-485 통신을 이용하여 중앙에서 제어할 수 있습니다.
유선리모컨을 이용하여 16대까지 그룹제어를 할 수 있습니다.
UV램프를 사용하여 살균, 항균, 악취제거, 새집증후군을 해결하는데 탁월한 효과를 보입니다.Option
-
| MODEL |
A |
B (토출구) |
C (그릴) |
D (모터) |
E (팬) |
| SFC-20TFV |
946 |
p120 x 4 = 480 |
4 |
1 |
1 |
| SFC-30TFV |
1066 |
p120 x 5 = 600 |
5 |
1 |
1 |
| SFC-40TFV |
1186 |
p120 x 6 = 720 |
6 |
1 |
2 |
| SFC-60TFV |
1426 |
p120 x 8 = 960 |
8 |
1 |
2 |
| SFC-80TFV |
1666 |
p120 x 10 = 1200 |
10 |
2 |
3 |
| SFC-120TFV |
1906 |
p120 x 12 = 1440 |
12 |
2 |
4 |
-
| No. |
DESCRIPTION |
MAT'L |
Q'TY |
REMARK |
| 1 |
INNER SIDE CASE |
GI |
2 |
- |
| 2 |
WATER OUTLET |
BS |
1 |
PF 3/4"(20A) |
| 3 |
AIR VENT |
BS |
1 |
PT 1/8"(수동) |
| 4 |
WATER INLET |
BS |
1 |
PF 3/4"(20A) |
| 5 |
DRAIN PAN |
내열ABS |
1 |
플라스틱 |
| 6 |
FAN IMPLLER |
ABS |
E |
SIROCCO FAN |
| 7 |
FAN HOSING |
ABS |
E |
- |
| 8 |
DRAIN HOSE |
연질비닐 |
1 |
내경 Ø14 외경 Ø18 |
| 9 |
MOTOR |
ASS'Y |
D |
1Ø 220V 60Hz |
| 10 |
AIR FILTER |
염화비닐 |
1 |
수세식 |
| 11 |
HEAT & COOLING COIL |
CU-AL |
1 |
SLIT FIN |
| 12 |
CONTROL SWITCH |
- |
1 |
로타리식(강, 중, 약 3단) |
| 13 |
GRILLE |
내열ABS |
C |
120*120 |
| 14 |
ACCESS DOOR |
ABS |
2 |
120*200 |
| 15 |
외부 PANEL |
CR |
1 |
분체소부도장 |
| 16 |
BASE |
복합PP |
2 |
T/K 30% |
좌우 스크롤
제품특징
실내 공기를 고르게 분포시킬 수 있도록 90'씩 풍향 조절이 가능한 토출그릴을 사용합니다.
-
저 소음, 긴 수명의 단상 컨덴서 유도 전동기를 적용하였습니다.
곡선형의 미려한 디자인으로 실내 공간에 잘 어울립니다.
일반 마이콤 스위치와 무선 리모컨용 스위치를 부착할 수 있습니다.Option
BLDC 모터를 적용하여 저전력 고효율이 가능하며 AC 모터 대비 소비 전력을 30%이상 절감할 수 있습니다.Option
-
에너지 절감을 위하여 제품별 On/Off 밸브 설치를 권장 합니다.Option
제품 동작과 연동하여 유량을 제어하여 냉방 시 결로문제 예방 및 순환펌프의 불필요한 동작 횟수를 줄여줍니다.
중앙제어와 그룹제어가 가능합니다.Option
전력선 통신과 RS-485 통신을 이용하여 중앙에서 제어할 수 있습니다.
유선리모컨을 이용하여 16대까지 그룹제어를 할 수 있습니다.
UV램프를 사용하여 살균, 항균, 악취제거, 새집증후군을 해결하는데 탁월한 효과를 보입니다.Option
-
| MODEL |
A |
B (토출구) |
C (그릴) |
D (모터) |
E (팬) |
| SFC-20FT |
940 |
p120 x 4 = 480 |
4 |
1 |
1 |
| SFC-30FT |
1060 |
p120 x 5 = 600 |
5 |
1 |
1 |
| SFC-40FT |
1180 |
p120 x 6 = 720 |
6 |
1 |
2 |
| SFC-60FT |
1420 |
p120 x 8 = 960 |
8 |
1 |
2 |
| SFC-80FT |
1660 |
p120 x 10 = 1200 |
10 |
2 |
3 |
| SFC-120FT |
1900 |
p120 x 12 = 1440 |
12 |
2 |
4 |
-
| No. |
DESCRIPTION |
MAT'L |
Q'TY |
REMARK |
| 1 |
INNER SIDE CASE |
ABS |
2 |
- |
| 2 |
WATER OUTLET |
BS |
1 |
PF 3/4"(20A) |
| 3 |
AIR VENT |
BS |
1 |
PT 1/8"(수동) |
| 4 |
WATER INLET |
BS |
1 |
PF 3/4"(20A) |
| 5 |
DRAIN PAN |
내열ABS |
1 |
플라스틱 |
| 6 |
FAN IMPLLER |
ABS |
E |
SIROCCO FAN |
| 7 |
FAN HOSING |
ABS |
E |
- |
| 8 |
DRAIN HOSE |
연질비닐 |
1 |
내경 Ø14 외경 Ø18 |
| 9 |
MOTOR |
ASS'Y |
D |
1Ø 220V 60Hz |
| 10 |
AIR FILTER |
염화비닐 |
1 |
수세식 |
| 11 |
HEAT & COOLING COIL |
CU-AL |
1 |
SLIT FIN |
| 12 |
CONTROL SWITCH |
- |
1 |
로타리식(강, 중, 약 3단) |
| 13 |
GRILLE |
내열ABS |
C |
120*120 |
| 14 |
ACCESS DOOR |
ABS |
2 |
120*200 |
| 15 |
외부 PANEL |
CR |
1 |
분체소부도장 |
| 16 |
BASE |
복합PP |
2 |
T/K 30% |
좌우 스크롤
제품특징
실내 공기를 고르게 분포시킬 수 있도록 90'씩 풍향 조절이 가능한 토출그릴을 사용합니다.
-
-
별도의 외장 커버를 설치하는 경우 선택할 수 있습니다.
일반 마이콤 스위치와 무선 리모컨용 스위치를 부착할 수 있습니다.Option
2코일(4PIPE) 적용이 가능 합니다.Option
BLDC 모터를 적용하여 저전력 고효율이 가능하며 AC 모터 대비 소비 전력을 30%이상 절감할 수 있습니다.Option
에너지 절감을 위하여 제품별 On/Off 밸브 설치를 권장 합니다.Option
제품 동작과 연동하여 유량을 제어하여 냉방 시 결로문제 예방 및 순환펌프의 불필요한 동작 횟수를 줄여줍니다.
중앙제어와 그룹제어가 가능합니다.Option
전력선 통신과 RS-485 통신을 이용하여 중앙에서 제어할 수 있습니다.
유선리모컨을 이용하여 16대까지 그룹제어를 할 수 있습니다.
UV램프를 사용하여 살균, 항균, 악취제거, 새집증후군을 해결하는데 탁월한 효과를 보입니다.Option
-
| MODEL |
A |
B (토출구) |
C (모터) |
D (팬) |
| SFC-20TFM |
540 |
480 |
1 |
1 |
| SFC-30TFM |
660 |
600 |
1 |
1 |
| SFC-40TFM |
780 |
720 |
1 |
2 |
| SFC-60TFM |
1020 |
960 |
1 |
2 |
| SFC-80TFM |
1260 |
1200 |
2 |
3 |
| SFC-120TFM |
1500 |
1440 |
2 |
4 |
-
| No. |
DESCRIPTION |
MAT'L |
Q'TY |
REMARK |
| 1 |
INNER SIDE CASE |
ABS |
2 |
- |
| 2 |
WATER OUTLET |
BS |
1 |
PF 3/4"(20A) |
| 3 |
AIR VENT |
BS |
1 |
PT 1/8"(수동) |
| 4 |
WATER INLET |
BS |
1 |
PF 3/4"(20A) |
| 5 |
DRAIN PAN |
내열ABS |
1 |
플라스틱 |
| 6 |
FAN IMPLLER |
ABS |
D |
SIROCCO FAN |
| 7 |
FAN HOSING |
ABS |
D |
- |
| 8 |
DRAIN HOSE |
연질비닐 |
1 |
내경Ø14 외경Ø18 |
| 9 |
LEVELING BOLT |
- |
4 |
6*35mm |
| 10 |
MOTOR |
ASS'Y |
C |
1Ø 220V 60Hz |
| 11 |
AIR FILTER |
염화비닐 |
1 |
수세식 |
| 12 |
HEAT & COOLING COIL |
CU-AL |
1 |
SLIT FIN |
| 13 |
CONTROL SWITCH |
- |
1 |
로타리식(강, 중, 약 3단) |
좌우 스크롤