팬코일유니트
로보이형
대한민국 공조 기술을 세계에 알리고, 지속 가능한 혁신으로 글로벌 경쟁력을 갖춘 기업으로 성장하겠습니다.


호텔, 레스토랑, 레저시설 및 사무실에서 밝고 넓은 창문을 가진 공간에 적합합니다.
일반 마이콤 스위치와 무선 리모컨용 스위치를 부착할 수 있습니다.Option
2코일(4PIPE) 적용이 가능 합니다.Option
BLDC 모터를 적용하여 저전력 고효율이 가능하며 AC 모터 대비 소비 전력을 30%이상 절감할 수 있습니다.Option
에너지 절감을 위하여 제품별 On/Off 밸브 설치를 권장 합니다.Option
제품 동작과 연동하여 유량을 제어하여 냉방 시 결로문제 예방 및 순환펌프의 불필요한 동작 횟수를 줄여줍니다.
중앙제어와 그룹제어가 가능합니다.Option
전력선 통신과 RS-485 통신을 이용하여 중앙에서 제어할 수 있습니다.
유선리모컨을 이용하여 16대까지 그룹제어를 할 수 있습니다.
UV램프를 사용하여 살균, 항균, 악취제거, 새집증후군을 해결하는데 탁월한 효과를 보입니다.Option
국내 특허등록번호 제 10-1147406호

| MODEL | A | B (토출구) | C (그릴) | D (모터) | E (팬) |
|---|---|---|---|---|---|
| SFC-20L | 940 | p120 x 4 = 480 | 4 | 1 | 1 |
| SFC-30L | 1060 | p120 x 5 = 600 | 5 | 1 | 1 |
| SFC-40L | 1180 | p120 x 6 = 720 | 6 | 1 | 2 |
| SFC-60L | 1420 | p120 x 8 = 960 | 8 | 1 | 2 |
| SFC-80L | 1660 | p120 x 10 = 1200 | 10 | 2 | 3 |
| SFC-120L | 1900 | p120 x 12 = 1440 | 12 | 2 | 4 |
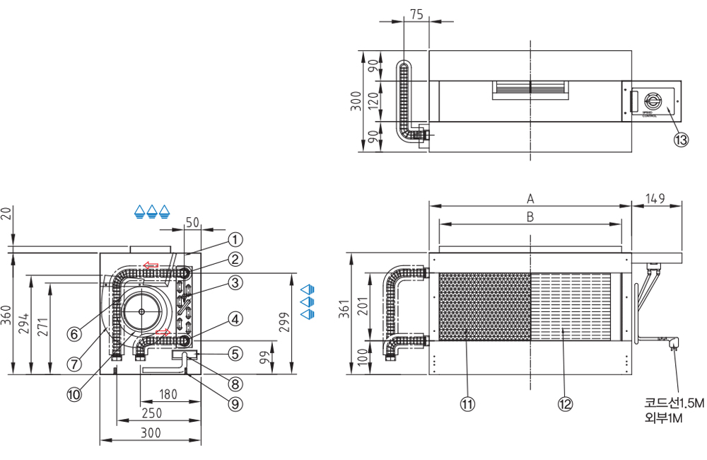
| No. | DESCRIPTION | MAT'L | Q'TY | REMARK |
|---|---|---|---|---|
| 1 | INNER SIDE CASE | GI | 2 | - |
| 2 | WATER OUTLET | BS | 1 | PF 3/4"(20A) |
| 3 | AIR VENT | BS | 1 | PT 1/8"(수동) |
| 4 | WATER INLET | BS | 1 | PF 3/4"(20A) |
| 5 | DRAIN PAN | 내열ABS | 1 | 플라스틱 |
| 6 | AIR IMPLLER | ABS | E | SIROCCO FAN |
| 7 | FAN HOSING | ABS | E | - |
| 8 | DRAIN HOSE | 연질비닐 | 1 | 내경 Ø14 외경 Ø18 |
| 9 | MOTOR | ASS'Y | D | 1Ø 220V 60Hz |
| 10 | AIR FILTER | 염화비닐 | 1 | 수세식 |
| 11 | HEAT & COOLING COIL | CU-AL | 1 | SLIT FIN |
| 12 | CONTROL SWITCH | - | 1 | 로타리식(강, 중, 약 3단) |
| 13 | GRILLE | 내열ABS | C | 120*120 |
| 14 | ACCESS DOOR | ABS | 2 | 120*200 |
| 15 | 외부 PANEL | CR | 1 | 분체소부도장 |
| 16 | BASE | 복합PP | 2 | T/K 30% |

| MODEL | A | B (토출구) | C (모터) | D (팬) |
|---|---|---|---|---|
| SFC-20LM | 540 | 480 | 1 | 1 |
| SFC-30LM | 660 | 600 | 1 | 1 |
| SFC-40LM | 780 | 720 | 1 | 2 |
| SFC-60LM | 1020 | 960 | 1 | 2 |
| SFC-80LM | 1260 | 1200 | 2 | 3 |
| SFC-120LM | 1500 | 1440 | 2 | 4 |
| No. | DESCRIPTION | MAT'L | Q'TY | REMARK |
|---|---|---|---|---|
| 1 | INNER SIDE CASE | GI | 2 | - |
| 2 | WATER OUTLET | BS | 1 | PF 3/4"(20A) |
| 3 | AIR VENT | BS | 1 | PT 1/8"(수동) |
| 4 | WATER INLET | BS | 1 | PF 3/4"(20A) |
| 5 | DRAIN PAN | 내열ABS | 1 | 플라스틱 |
| 6 | FAN IMPLLER | ABS | D | SIROCCO FAN) |
| 7 | FAN HOSING | ABS | D | - |
| 8 | DRAIN HOSE | 연질비닐 | 1 | 내경Ø14 외경Ø18 |
| 9 | LEVELING BOLT | - | 4 | 6*35mm |
| 10 | MOTOR | ASS'Y | C | 1Ø 220V 60Hz |
| 11 | AIR FILTER | 염화비닐 | 1 | 수세식 |
| 12 | HEAT & COOLING COIL | CU-AL | 1 | SLIT FIN |
| 13 | CONTROL SWITCH | - | 1 | 로타리식(강, 중, 약 3단) |
| 구분 | 규격 | SFC-20L,LM | SFC-30L,LM | SFC-40L,LM | SFC-60L,LM | SFC-80L,LM | SFC-120L,LM | |||||||
|---|---|---|---|---|---|---|---|---|---|---|---|---|---|---|
| 능력 | 능력조건 | A | B | A | B | A | B | A | B | A | B | A | B | |
| 냉방능력 | W | 2,790 | 2,120 | 3,700 | 2,810 | 5,360 | 4,050 | 7,220 | 5,490 | 10,440 | 7,870 | 13,610 | 10,260 | |
| Kcal/h | 2,400 | 1,820 | 3,180 | 2,420 | 4,610 | 3,480 | 6,210 | 4,720 | 8,980 | 6,770 | 11,700 | 8,820 | ||
| 난방능력 | W | 5,640 | 3,460 | 7,780 | 4,770 | 10,990 | 6,710 | 14,330 | 8,760 | 21,240 | 12,950 | 23,640 | 14,340 | |
| Kcal/h | 4,850 | 2,980 | 6,690 | 4,100 | 9,450 | 5,770 | 12,320 | 7,530 | 18,270 | 11,140 | 20,330 | 12,330 | ||
| 유량 | ℓ/min | 8.1 | 6.0 | 10.7 | 8.0 | 15.4 | 11.5 | 20.8 | 15.7 | 30.0 | 22.4 | 39.1 | 29.3 | |
| 손실수두 | mAq | 0.7 | 0.4 | 1.6 | 0.9 | 4.4 | 2.4 | 3.5 | 2.0 | 9.5 | 5.3 | 16.8 | 9.4 | |
| 송풍기 | 형식 | 양흡입 다익형(SIROCCO FAN) | ||||||||||||
| SIZE | mm | Ø145 X L165 | Ø145 X L200 | Ø145 X L165 | Ø145 X L200 | Ø145 X L200 | Ø145 X L200 | |||||||
| 풍량 | ㎥/min | 5.7 | 8.5 | 11.3 | 17 | 22.6 | 34 | |||||||
| 구동 | 모터직결구동 | |||||||||||||
| 수량 | EA | 1 | 1 | 2 | 2 | 3 | 4 | |||||||
| 모터 | 형식 | AC 반밀폐형(6극, B종 절연) | ||||||||||||
| 소비전력 | W | 30 | 40 | 50 | 70 | 40 + 70 | 70 X 2 | |||||||
| 수량 | EA | 1 | 1 | 1 | 1 | 2 | 2 | |||||||
| 열교환기 | 형식 | 일체형 Multi-Pass Cross Finned Tube(Slit Fin) | ||||||||||||
| 배관 | 입구 | A | PF 3/4" (20A) | |||||||||||
| 출구 | A | PF 3/4" (20A) | ||||||||||||
| 드레인 | 연질비닐호스 (내경 Ø14, 외경 Ø18) | |||||||||||||
| 외장 | 아연도금 강판, 분체소부도장 | |||||||||||||
| 풍량조절 | 강, 중, 약 3단 Rotary Switch | |||||||||||||
| 전원 | 단상 220V 60HZ | |||||||||||||
| AIR FILTER | 염화 비닐(수세식) | |||||||||||||
| 제품중량 | Kg | 24(15) | 27(18) | 31(20) | 36(25) | 41(32) | 44(40) | |||||||
| * 주의사항 | 1. 능력조건 A : 냉방능력 : 실내공기 DB 27℃ WB 21℃ 입구수온 5℃ 난방능력 : 실내공기 18℃ 입구수온 80℃ 일때 2. 능력조건 B : 냉방능력 : 실내공기 DB 27℃ WB 19.5℃ 입구수온 7℃ 난방능력 : 실내공기 21℃ 입구수온 60℃ 일때 |
|||||||||||||